Terrain Marbesa, Marbella Est
Malaga, Espagne

a vendre1.500.000 €
India Maile
Contactez nous
India Maile

india@selectionmed.com
Mijas / Costa del Sol

+34 650 206 159
demande d'infos

Terrain à vendre à Marbesa Marbella | Projet de villa à quelques pas de la mer

Une opportunité exceptionnelle d’acquérir un terrain de 872 m² en bord de mer avec un projet de villa approuvé, situé à seulement quelques pas de la Méditerranée, dans Marbesa—l’un des quartiers côtiers les plus établis et recherchés de Marbella Est.

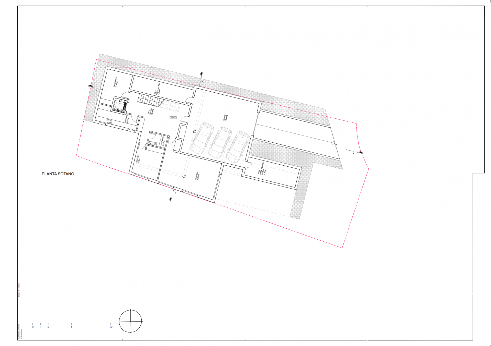
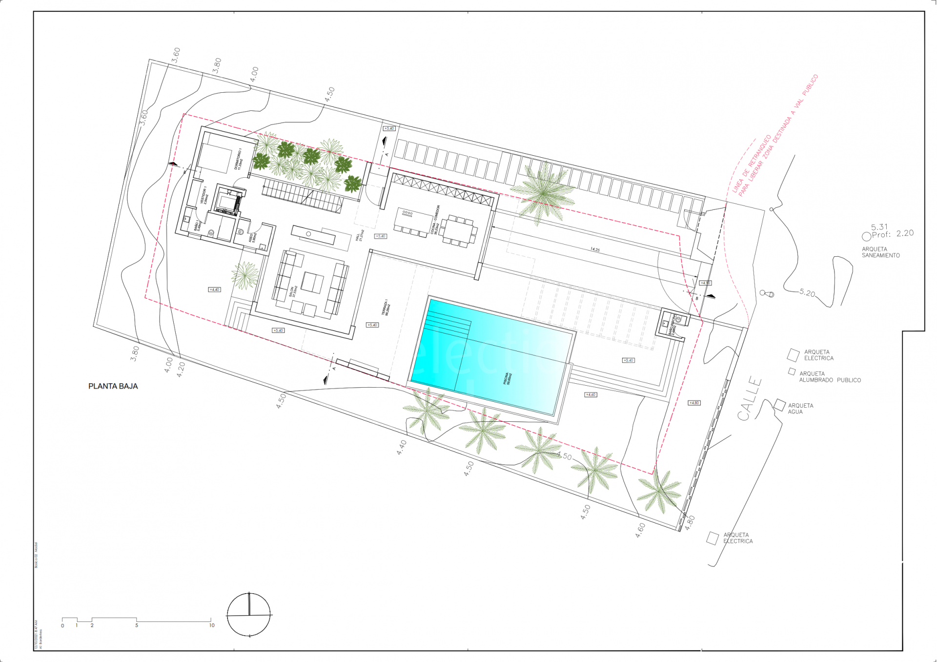
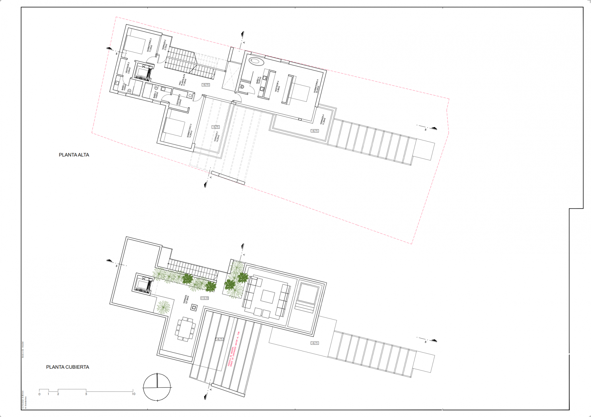
La maison contemporaine proposée s’étend sur quatre niveaux—rez-de-chaussée, étage supérieur, sous-sol et solarium sur le toit— pour une surface construite totale de 295,63 m². Les espaces intérieurs sont soigneusement agencés sur 155,60 m², complétés par 140,03 m² de terrasses conçues pour la vie en plein air. Le jardin privé paysager mesure 547,93 m² et comprend une piscine ainsi que des espaces extérieurs élégants, idéaux pour profiter du climat de la Costa del Sol toute l’année.

Le projet de villa comprend quatre chambres, chacune avec sa propre salle de bains attenante, ainsi que deux toilettes invités. La suite principale occupe l’étage supérieur et bénéficie d’un accès direct à une terrasse privée. Le vaste sous-sol est prévu pour accueillir une salle de sport, une buanderie, un espace de rangement et un garage pour deux voitures, tandis que le solarium sur le toit offre des vues dégagées sur les environs.

Caractéristiques de qualité :
Carrelage grand format en grès cérame ; parquet stratifié en bois naturel à l’étage
Cuisine design entièrement équipée avec électroménagers intégrés
Chauffage au sol et climatisation gainable avec contrôle individuel par pièce
Isolation de haute qualité et double vitrage pour une performance acoustique et thermique optimale
Domotique intelligente pour l’éclairage, le climat et la sécurité
Jardin paysager avec irrigation intégrée et éclairage extérieur
Panneaux solaires photovoltaïques et système aérothermique pour l’eau chaude et l’efficacité énergétique

À seulement une minute à pied de la plage, ce terrain avec projet allie emplacement privilégié, design contemporain et intimité exceptionnelle—parfait pour ceux qui souhaitent construire une résidence moderne et élégante dans l’un des quartiers balnéaires les plus prisés de Marbella.

Surface 295 m²
Terrain 872 m²
Reference 428-05033D

Autres Caractéristiques

  • Côté plage
  • À proximité des commerces
  • Climatisation
  • Près de la ville
  • Près du port
  • DirectSeaAccess
  • Proche des écoles
  • Entièrement meublé
  • Cuisine entièrement adaptée
  • Proche de la mer/plage
  • CloseToRestaurants
  • Salle de gym
  • Neuf
  • Afficher l'EPC

Emplacement

Contact

Recherches similaires